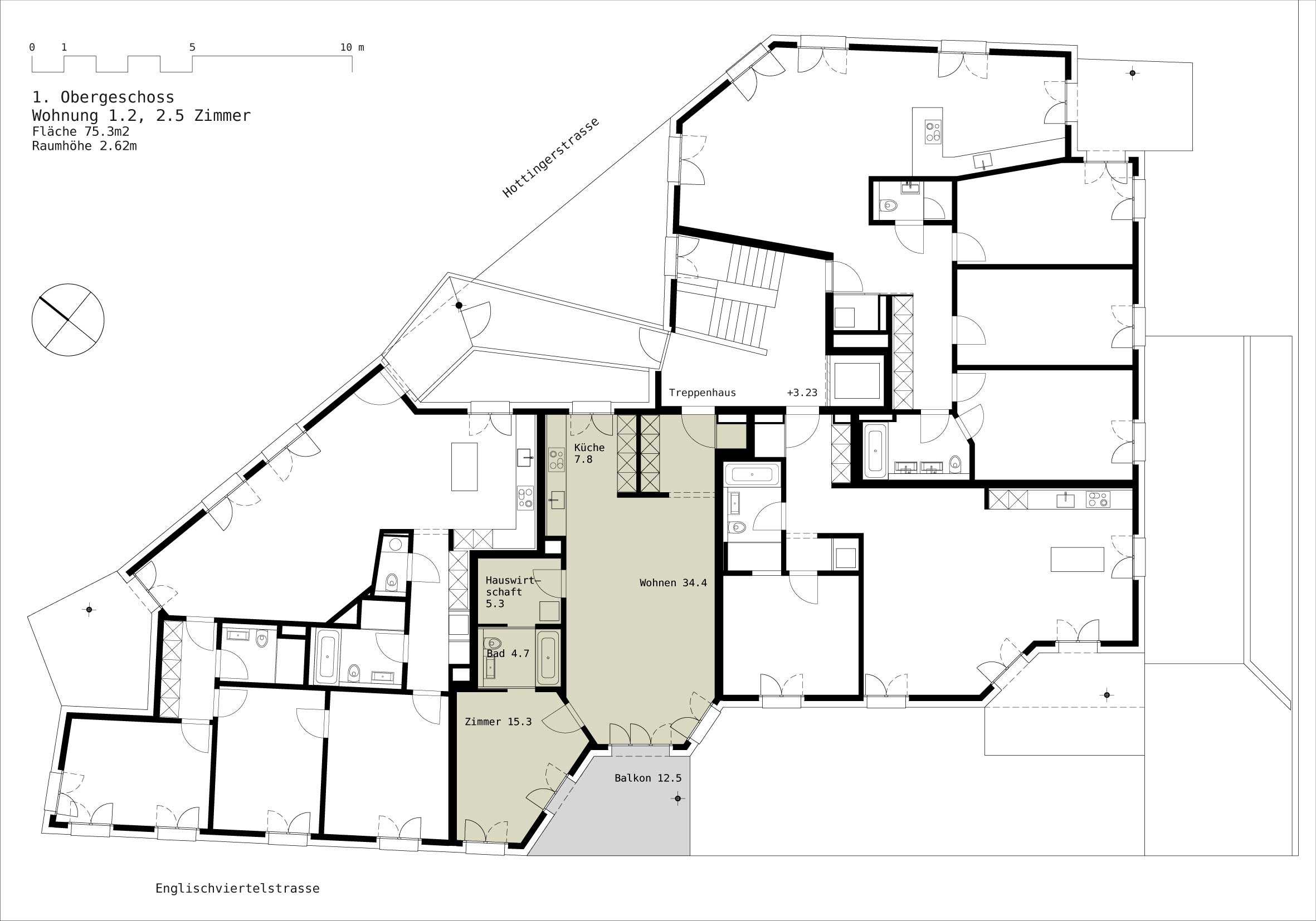
Whg. 1.2

Grundriss:

Nutzfläche nach SIA 416 (statische Wände und Installationsschächte nicht eingerechnet).

 

4446-512-1-[1OG-1_100-Vermietung-WHG-1-2