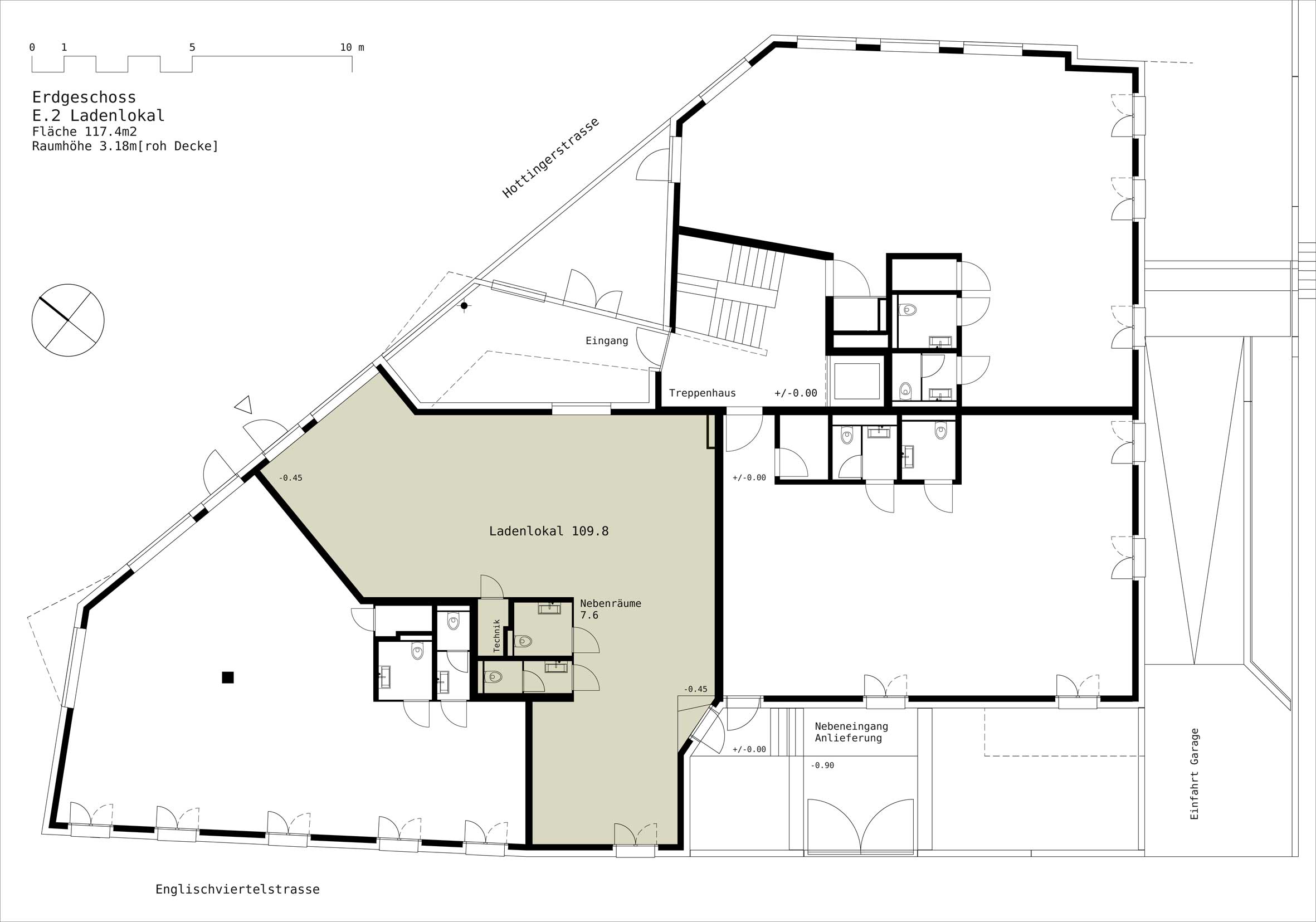
E. 2

Grundriss:

Nutzfläche nach SIA 416 (statische Wände und Installationsschächte nicht eingerechnet).

 

4446-511-2-[EG-1_100-Vermietung-E2]